







GENERAL PLAN AMENDMENT AND REZONING REQUEST PRELIMINARY REVIEW PROCEDURE (PRP)
SUBMITTAL 40950 CHAPEL WAY, FREMONT, CA 94538



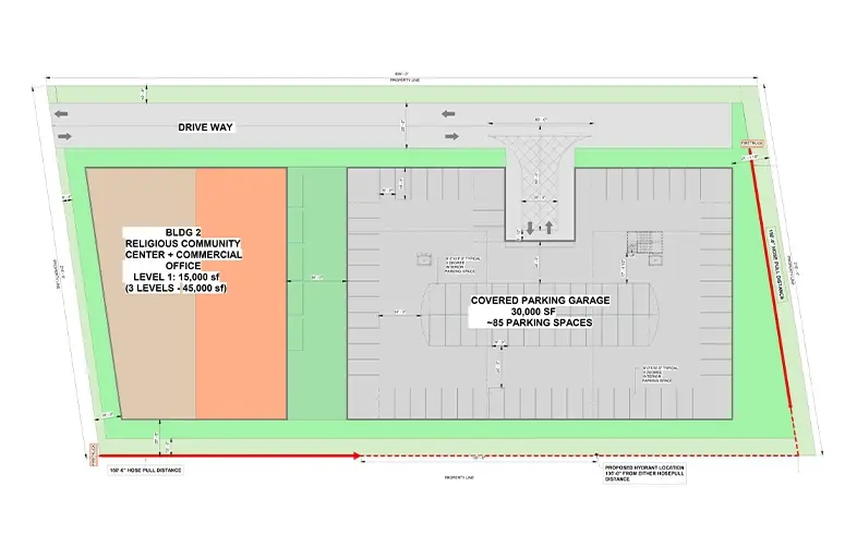
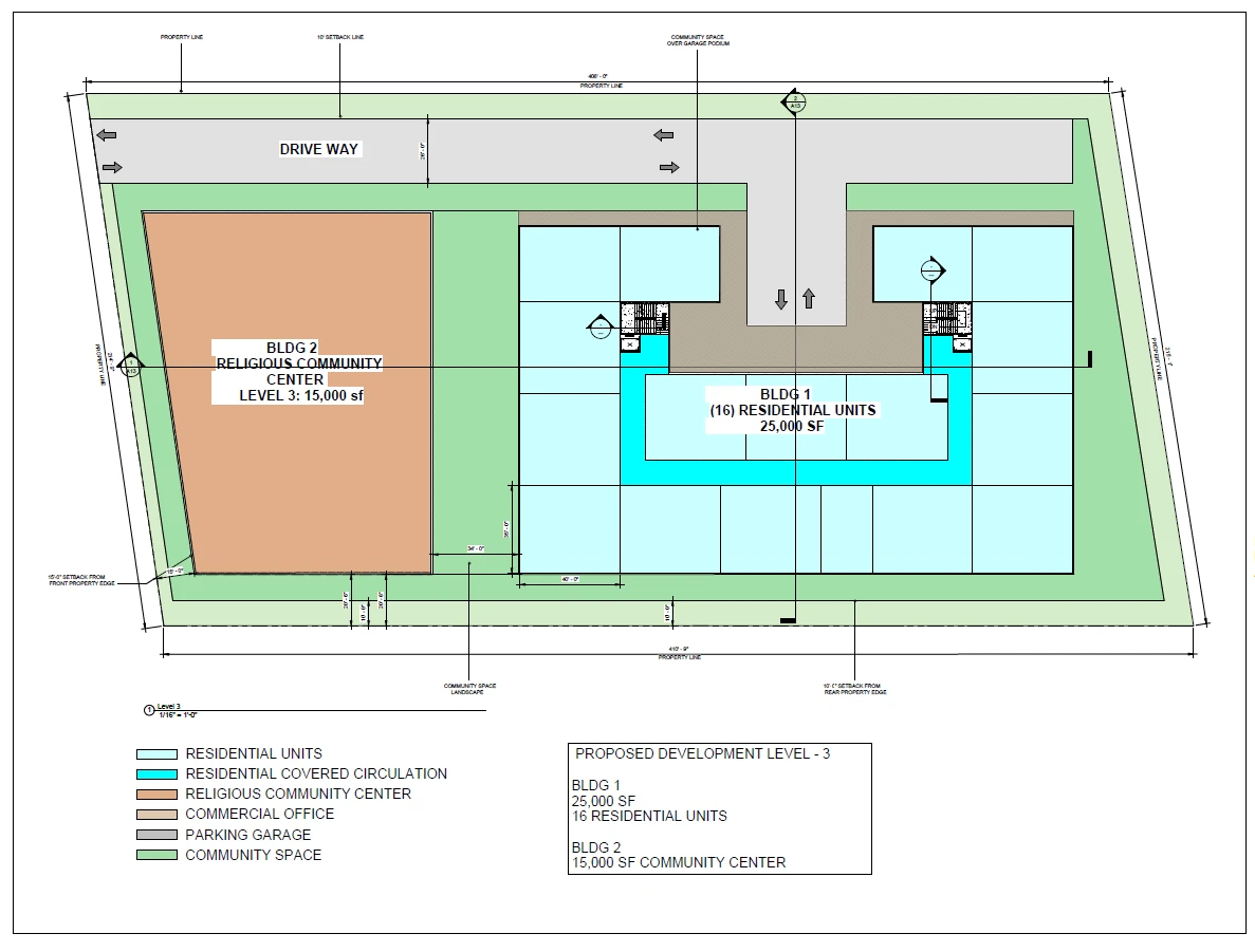
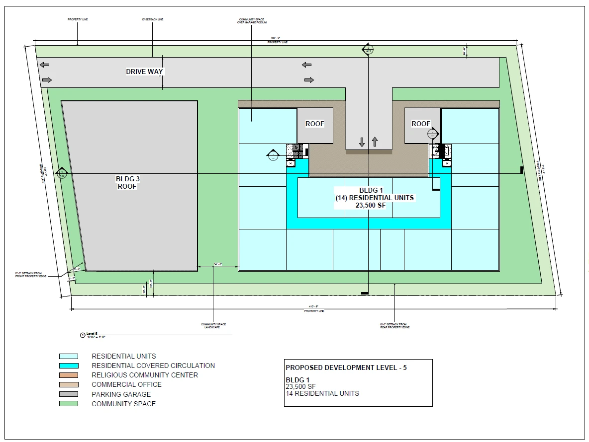
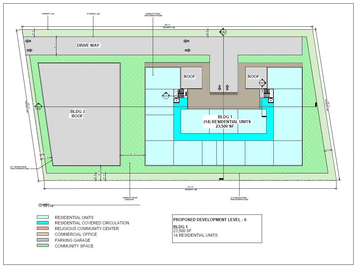
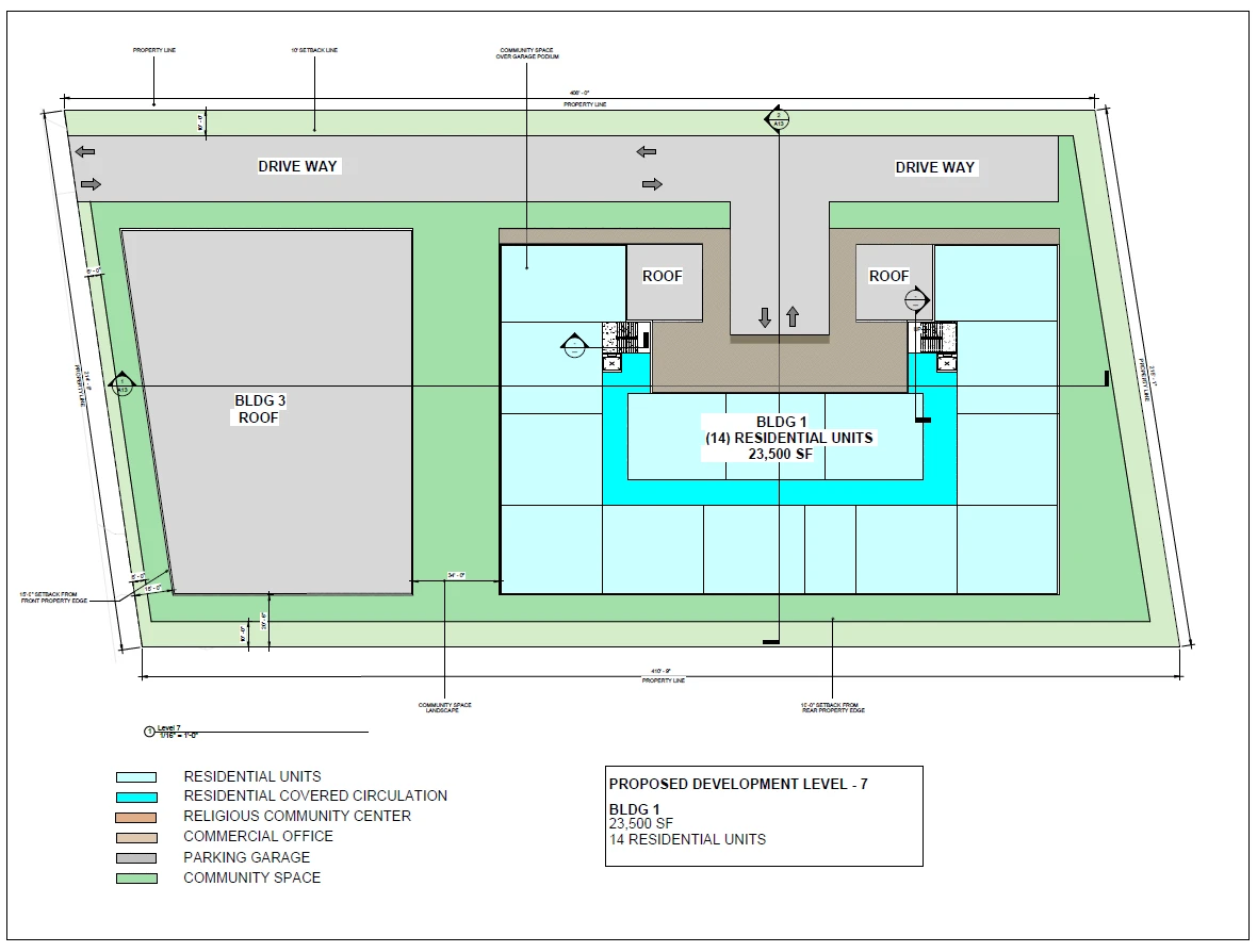
THE EXISTING, APPROXIMATELY 2 ACRE PROPERTY IS CURRENTLY ZONED AS A PUBLIC FACILITY THAT WAS PREVIOUSLY OWNED BY THE COUNTY OF SANTA CLARA AND OPERATED AS A SCHOOL. CHAPEL WAY LLC IS IN THE PROCESS OF ACQUIRING THE PROPERTY FROM IT’S CURRENT OWNER AND INTENDS TO DEVELOP THE SITE AS A MIXED USE DEVELOPMENT TO INCLUDE MULTI-FAMILY RESIDENTIAL, A RELIGIOUS COMMUNITY CENTER, AND COMMERCIAL OFFICE. THE RESIDENTIAL DEVELOPMENT WILL INCLUDE BELOW MARKET HOUSING FOR VERY LOW INCOME HOUSE HOLDS. THE PROPOSED DEVELOPMENT WILL HAVE TWO BUILDINGS ON THE PROPERTY. THE BUILDING FACING THE STREET IS PROPOSED TO BE A 3-STORY BUIDLING WITH A 15,000 SF FOOT PRINT, STREET FACING COMMERCIAL OFFICE ON LEVEL 1, AND A COMMUNITY CENTER ON LEVELS 1, 2 AND 3. THE SIX STORY RESIDENTIAL BUILDING IS PROPOSED ABOVE A SINGLE LEVEL GARAGE. THE PODIUM ABOVE THE GARAGE WILL SERVE AS A COMMUNITY SPACE FOR THE RESIDENTS. THE TOTAL HEIGHT OF THE TWO BUILDINGS IS PROPOSED TO BE 75 FEET INCLUDING THE GARAGE ON LEVEL 1. THE MEDIUM DENSITY RESIDENTIAL DESIGNATION IS BEING PROPOSED TO SUPPORT THE CITY OF FREMONT’S GENERAL PLAN 2030 GOALS OF DEVELOPING MULTI FAMILY RESIDENTIAL DEVELOPMENTS IN THE VICINITY OF TRANSPORT ORIENTED DISTRICTS AND PRIORITY DEVELOPMENT AREAS. WITH STREET FACING COMMERCIAL OFFICE, THE PROJECT WILL PROVIDE PEDESTRIAN ORIENTED DEVELOPMENT. THE COMMUNITY CENTER WILL CONTINUE THE ORIGINAL PUBLIC INTEREST FUNCTIONS OF THE PROPERTY, AND THE MULTIFAMILY DEVELOPMENT WILL PROVIDE MUCH NEEDED HOUSING NEEDS FOR REGULAR AND LOW INCOME HOUSEHOLDS.







